Bel een vestiging bij jou in de buurt
Vul je plaats of postcode in (bijv. 1234 AB) of gebruik je huidige locatie en bekijk de vijf dichtstbijzijnde vestigingen binnen een straal van 50 kilometer — bel eenvoudig de locatie van jouw keuze.
Waalderweg - Mariënvelde
€ 635.250,- v.o.n.
Wonen midden in het Achterhoekse coulisselandschap met fraai uitzicht over de landerijen!
In het het groene buitengebied van Mariënvelde (gemeente Oost Gelre) worden een tweetal NIEUW te bouwen 2-ONDER-1-KAP WONINGEN gerealiseerd.
De woningen worden traditioneel gebouwd en optimaal geïsoleerd volgens de hedendaagse bouwnormen. De woningen zijn gasloos en worden voorzien van een lucht-water warmtepomp, zonnepanelen en vloerverwarming. Buitendeuren en -kozijnen worden uitgevoerd in meranti/merbau hout, voorzien van isolerende HR++ beglazing.
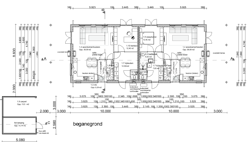
Woonoppervlakte: circa 132 m²
Overdekt terras (buitenzithoek): circa 32 m²
Externe bergruimte: circa 28 m²
Perceeloppervlakte: circa 1000 m², optioneel is het mogelijk om nog 500 m² bij te kopen.
De begane grond heeft meerdere indelingsmogelijkheden. Zo kan er gekozen worden voor een levensloopbestendige indeling met een slaapkamer en badkamer op de begane grond. Liever een kantoor of speelkamer? Dat kan ook! Wat in ieder geval vast staat is de L-vormige woonkamer met keuken, waarbij het zitgedeelte is gericht op de achtertuin. De riante dak overstek maakt ruimte voor een prachtige buitenzithoek, via de woonkamer en keuken is het terras te bereiken. En daarnaast een gastentoilet, bijkeuken (met wasmachine aansluiting) en trapkast.
Op de verdieping bevinden zich 3 slaapkamers en een badkamer. Middels een vlizotrap is de bergzolder te bereiken.
Los van de woning staat (optioneel) een berging (circa 10 m²) met carport, deze is voorzien van elektra.
De berging met carport is niet bij de koopsom inbegrepen.
Er zijn stelposten opgenomen voor de volgende zaken:
- Voordeur
- Sanitair
- Vloertegels
- Wandtegels
- Diamantzagen, boren en freezen
Goed om te weten:
- Het ontwerp staat vast qua grootte, uitstraling en materiaalgebruik.
- De woning wordt opgeleverd exclusief keuken en tuinaanleg.
- De woningen worden behangklaar opgeleverd.
Meer weten? Neem contact met ons op!
Kenmerken
-
Adres
Waalderweg
7263 RV Mariënvelde
-
Status
Beschikbaar
-
Soort
Twee-onder-een-kapwoning
-
Vraagprijs
€ 635.250,- v.o.n.
-
Beschikbaarheid
In overleg
-
Bouwjaar
2026
-
Ligging
Buiten bebouwde kom, Landelijk gelegen
-
Perceeloppervlakte
1000 m2
-
Woonoppervlakte
132 m2
-
Inhoud
614 m3
-
Aantal kamers
5
-
Aantal slaapkamers
4
-
Garage
Vrijstaand steen
-
Verwarming
Warmtepomp
Interesse?
Neem contact op met onze vestiging Lichtenvoorde.
-
Vandaag open tot 17:00
-
Bel naar
0544 372 220
-
Stuur een WhatsApp bericht
7263 RV Mariënvelde
Interesse?
Neem contact op met onze vestiging Lichtenvoorde.
- Vandaag open tot 17:00
- Bel naar 0544 372 220
- Stuur een WhatsApp bericht
Locatie
Bekijk op Google MapsInteresse?
Neem contact op met onze vestiging Lichtenvoorde.
- Vandaag open tot 17:00
- Bel naar 0544 372 220
- Stuur een WhatsApp bericht